Lot 62
Sold


Show all photos
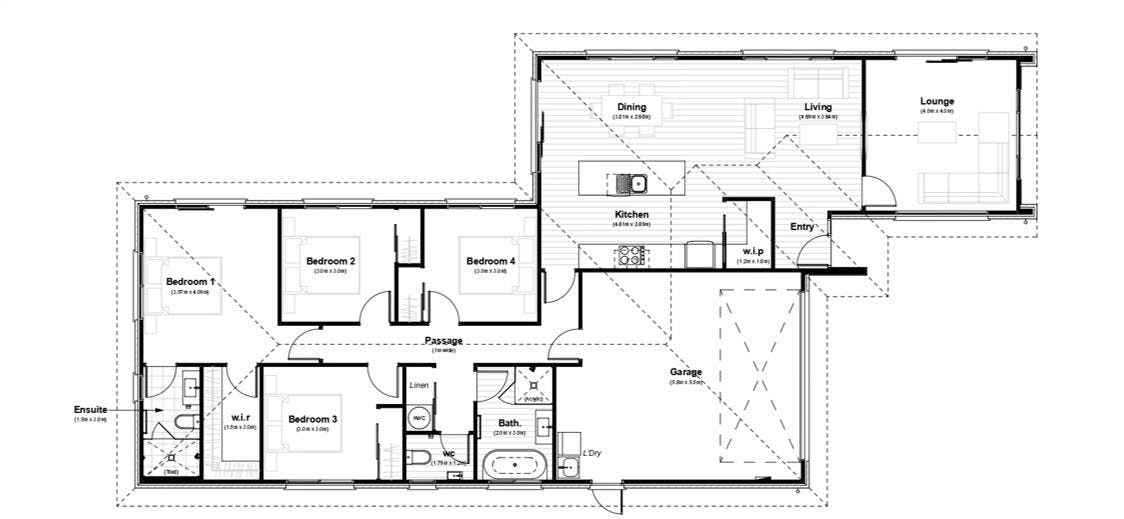
Total floor: 190m2
Description
This ticks all the boxes for families! With four-bedrooms, two spacious living areas, a modern open-plan kitchen with a generous walk-in pantry, and a separate toilet for added convenience.
The master bedroom is a private retreat featuring a tiled ensuite and walk-in wardrobe, while the remaining bedrooms are well-sized and ideal for growing families. With flexible living spaces and a smart layout, this home makes everyday living and entertaining effortless.
Read more +
A master-planned development.
Planned primary school and commercial development (including a supermarket).
Enjoy the Lincoln lifestyle.
Read less -

Interested?
For more information contact Absolute Homes, or register your interest below.